使用者:年約五十左右夫妻。
要求:
- 保留現有的兩組衣櫃。
- 怕冷。
- 男主人要有一個地方讀書及使用iPad。
- 需要放內衣褲的地方。
- 看到開花植物。
- 窗戶不要太大。
- 床頭一定要朝北方。
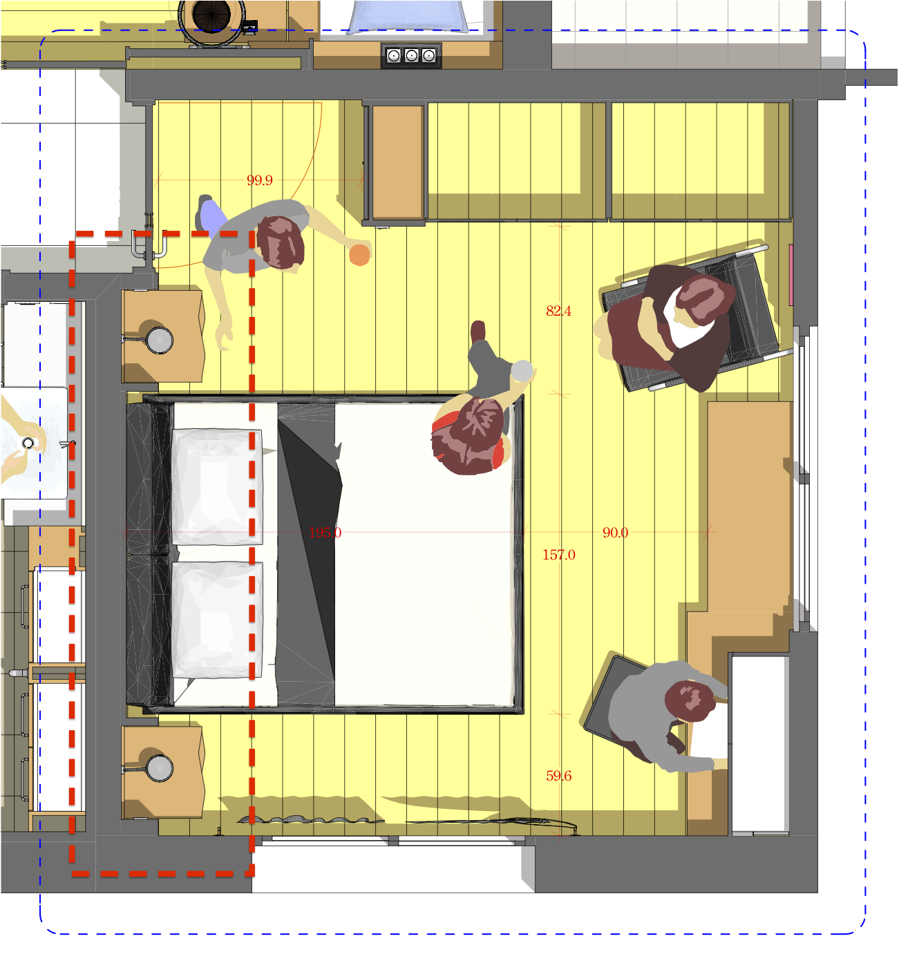
初步規劃構想
主臥房原先半套廁所讓給母親房使用,因此修正平面配置,本來北向牆面作為床頭使用。
規劃後平面配置
- 使用172cm寬×212.5cm長之雙人床朝向北方,避免氣場對流通過頭部。
- 入口設置進出常用置物櫃,結合衣櫃。
- 床左側通道至少45cm,方便上床及換洗床單。
- 書桌前方做實牆,避免南向變化過大陽光及氣流通過腦部,並提供書籍收納倚靠。
- 衣櫃門開啟須留淨空區,加大淨空區放置可活動的休閒倚。
- 屋主怕冷,開窗位置考慮光線變化過大的影響,適當窗戶大小減少溫度傳透影響。
- 通道考慮服務動線的層次的密集度。
衣物收納的使用
- 玄關設置出入常用置物櫃,置物櫃造形結合舊有衣櫃。
- 衣櫃上方設不常使用的物品,例如手提箱、棉被。
開窗與閱讀的使用
- 七點到十一點的日照影響,窗簾用紗及不透光來因應,十三點到十八點的日照則用實體牆來遮擋。
- 書桌台面延伸到置物櫃增加實用性。
- 常用書及不常用書籍存放,設計成開架式和門片式兩種。
- 窗簾軌道的修飾造形。
床頭與入口的關係
- 睡好眠,床頭牆面採用較穩定色彩。
- 壁面裝飾修飾比例過大的雙人床。
- 壁面照明柔化床頭區的聊天氣氛。
修正床頭的設計
- 希望使用標準床墊的尺寸:152cm*190cm,來設計床頭。
- 床頭希望能有個框架的造形。
- 牆面增加阻隔浴室噪音。












