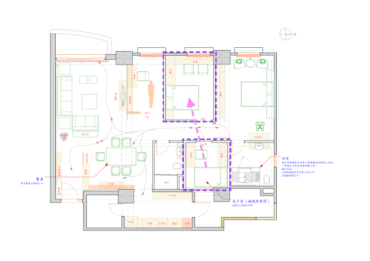
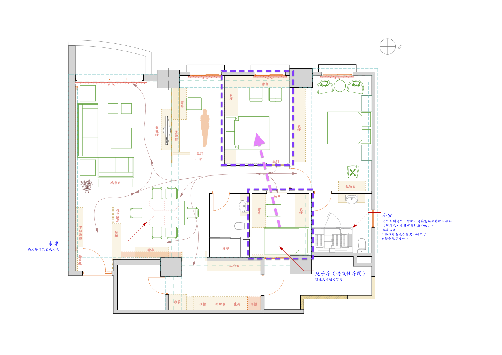
人在美國念書的阿玦,再過壹年即完成課業,他將是這個房子的第二主人,父母親準備一個過渡性的個人房,好讓他能在姊妹們出嫁前一個有一個休息居住地方,以後若結婚將遷到現有女兒房住。
2坪就這麼大,要把生活機能通通放進去,這可要好好想一想什麼是最重要的!阿玦喜歡看書,有很多的大本專業書籍,平時在家機會不多,晚上回家和家人共聚晚餐後,喜歡在客廳和父母親聊天,然後睡覺前在床前看個書假日時才有比較長時間在臥房。不太注重穿著打扮的阿玦,不用太大的地方放行頭,他也不喜歡運動,只有一個要求要有放大書的地方而且要能快速拿取,他還說:「我最討厭開開關關的,一目瞭然不是很好嗎!」。
騰出一個自由空間並把低矮的物件放在遠處,看起來比較舒服,因此大型物件放在入口處,眼睛的景象由緊縮到遠處而放鬆。
房間緊鄰著爸媽的廁所,有時聲音會震動傳播,這種固體傳音尤其在沈睡時影響很大,久而久之腦神經會衰弱,因此增厚牆壁和增加空氣層來解決。
設計一個可以置物的床來解決換季棉被的問題,有一些內褲、襪子就做抽屜來解決,還有一個放提袋包包的地方,最好式開放式讓男孩子方便使用。
還好靠窗的位子剛好在中間,當空氣對流時不會經過頭部和腳,不然長期下來可容易生病的,慶幸的是窗戶是日本YKK製的高級窗,氣密與隔音和隔溫是一流的,這裡還加裝了新鮮空氣進氣清靜機,還是奈米級耶!
B方案的多功能性是阿玦所要的,進出房間採「拉門」設計是有效利用空間的作法,增厚6-10cm的牆面卻能夠換到約2立方的空間量非常值得。床的收納解決了換季棉被的問題,在平常時,這個面剛好可以讓阿玦隨手拿取皮包類的東西,非常方便。
最終的設計完成圖,包含使用的材質,燈光配置、色彩搭配的風格。










